Cabinet neuf - Bureau 6
À louer
Description
Informations générales
- Disponible le
- Jeudi 2 avril 2026
Localisation
- Adresse
-
2 rue antoinette mizon
- Ville
- Cusset
- Accès / Desserte
-
Bus à proximitéParking disponible
- Accessibilité PMR
- Oui
- Niveau / Étage
-
Rez-de-chaussée
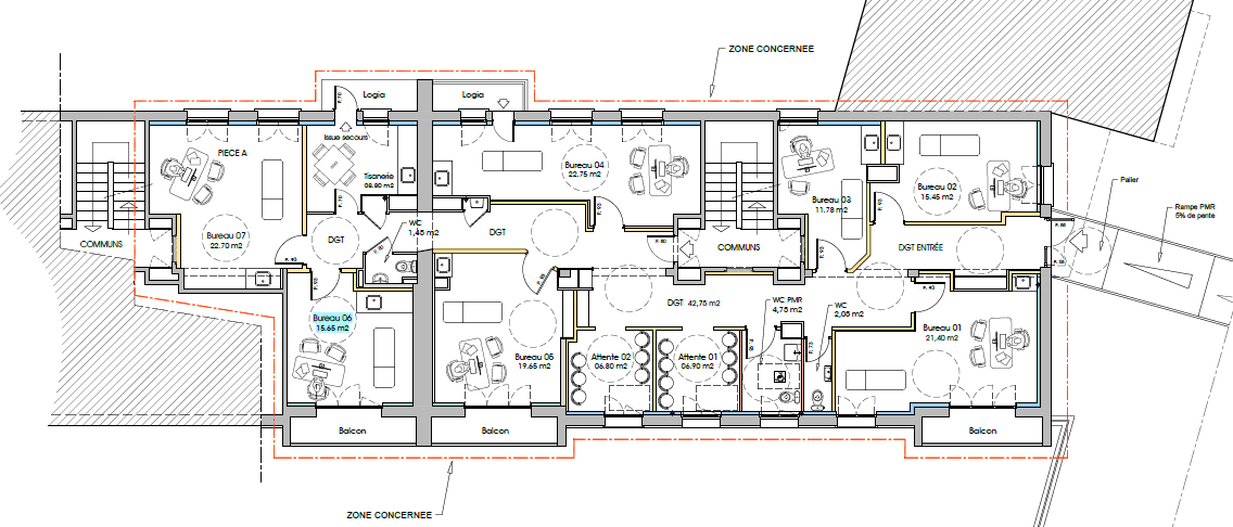
Surface et configuration
- Superficie totale
- 16 m²
- Point d'eau dans le bureau
- Oui
- Salle d'attente
-
Partagée
- Salle de convivialité
- Oui
- Sanitaires
-
Tous (publics, privés, PMR)
- Autres aménagements
-
Cuisine/KitchenetteTerrasse/Balcon
Dans un pôle pluridisciplinaire à proximité immédiate du centre de Cusset
Cabinet neuf disponible à la location
Parking privé possible sur demande
Charges = Internet, électricité, chauffage, nettoyage des communs 2 fois / semaine